Appartamento in vendita a Cagliari

1 / 4
Foto annuncio
Foto annuncio
Foto annuncio
290.000 €
80 m²
Superficie
3
Locali
2
Camere
2
Bagni
in vendita
appartamento
Cagliari [Pirri]
Descrizione
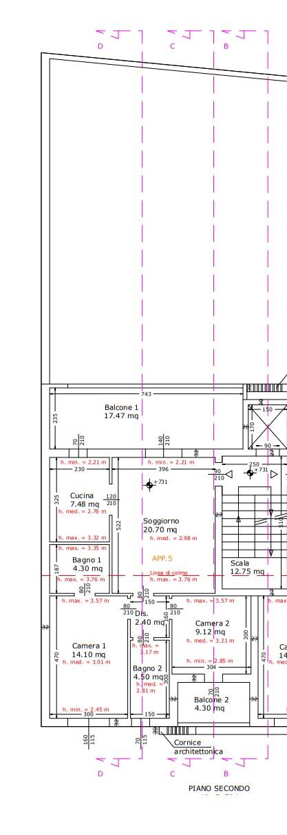
Cagliari, in via Santa Maria Chiara zona, piano secondo e ultimo di palazzo NUOVO, con ascensore, appartamento composto da ingresso con soggiorno con balcone luminoso, cucina, disimpegno, camera doppia, camera singola, due bagni e balcone.
Posto auto in area condominiale con cancello elettrico.

Immobile in costruzione.

Classe A4

290.000,00 euro oltre iva.
Caratteristiche principali
Codice:
id-1144
Città:
Cagliari (Pirri)
Categoria:
Appartamento
Locali:
3
Camere:
2
Bagni:
2
Mq:
80
Posti auto:
1
Balconi:
2
Classe energetica:
A4
Stato Immobile:
Prossima Realizzazione
Grado:
Signorile
Posizione:
Centro
Accessori
Aria Condizionata
Ascensore
Doppi Vetri
Mappa
Via Santa Maria Chiara - Cagliari (CA)
Cookie preference