Cagliari, Pirri, trivano nuovo al piano terra, posto auto

1 / 4
Foto annuncio
Foto annuncio
Foto annuncio
265.000 €
74 m²
Superficie
3
Locali
2
Camere
1
Bagni
in vendita
appartamento
Cagliari [Pirri]
Descrizione
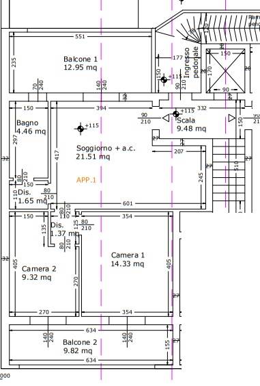
Cagliari, in via Santa Maria Chiara zona, al piano terra di palazzo NUOVO, appartamento composto da ingresso con soggiorno e angolo cottura con balcone luminoso, disimpegno, camera doppia, camera singola, bagno e balcone.
Posto auto in area condominiale con cancello elettrico.

Immobile in costruzione.

Classe A4

265.000,00 euro oltre iva.

Caratteristiche principali
Codice:
id-1141
Città:
Cagliari (Pirri)
Categoria:
Appartamento
Locali:
3
Camere:
2
Bagni:
1
Mq:
74
Posti auto:
1
Balconi:
2
Classe energetica:
A4
Stato Immobile:
Nuovo
Grado:
Signorile
Posizione:
Centro
Accessori
Aria Condizionata
Ascensore
Mappa
Via Santa Maria Chiara - Cagliari (CA)
Cookie preference